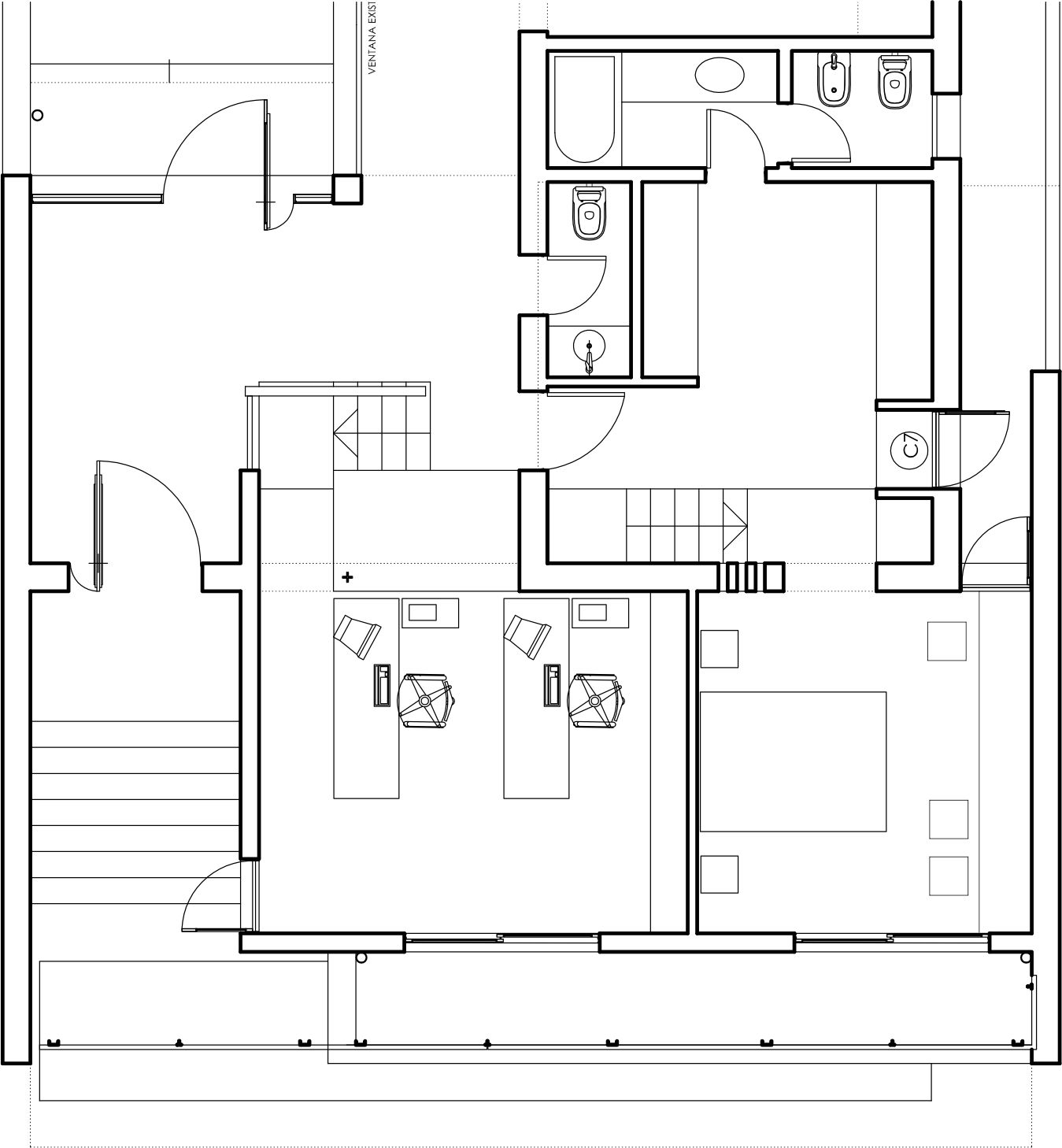
CASA M – PARANÁ, ENTRE RÍOS.

PORTADA
10
9
8
7
6
5
1 (4)
1 (3)
1 (2)
1 (1)
PORTADA 10 9 8 7 6 5 1 (4) 1 (3) 1 (2) 1 (1)

 

FICHA TÉCNICA:

  • AÑO DE ANTEPROYECTO: 1999
  • SUPERFICIE CUBIERTA: 120.00M2
  • UBICACIÓN: PARANA  ER
  • ANTEPROYECTO DE REMODELACION Y AMPLIACION