CASA O – PARANÁ, ENTRE RÍOS.

PORTADA
7
12
11
10
9
16
15
‍14
3
1 (5)
1 (4)
04. detalle 1 10
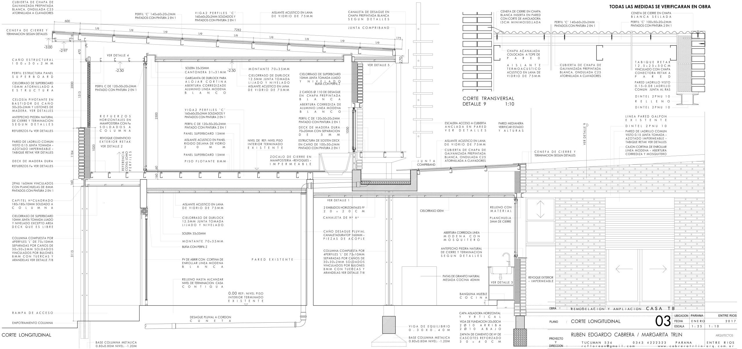
03. corte 1 25
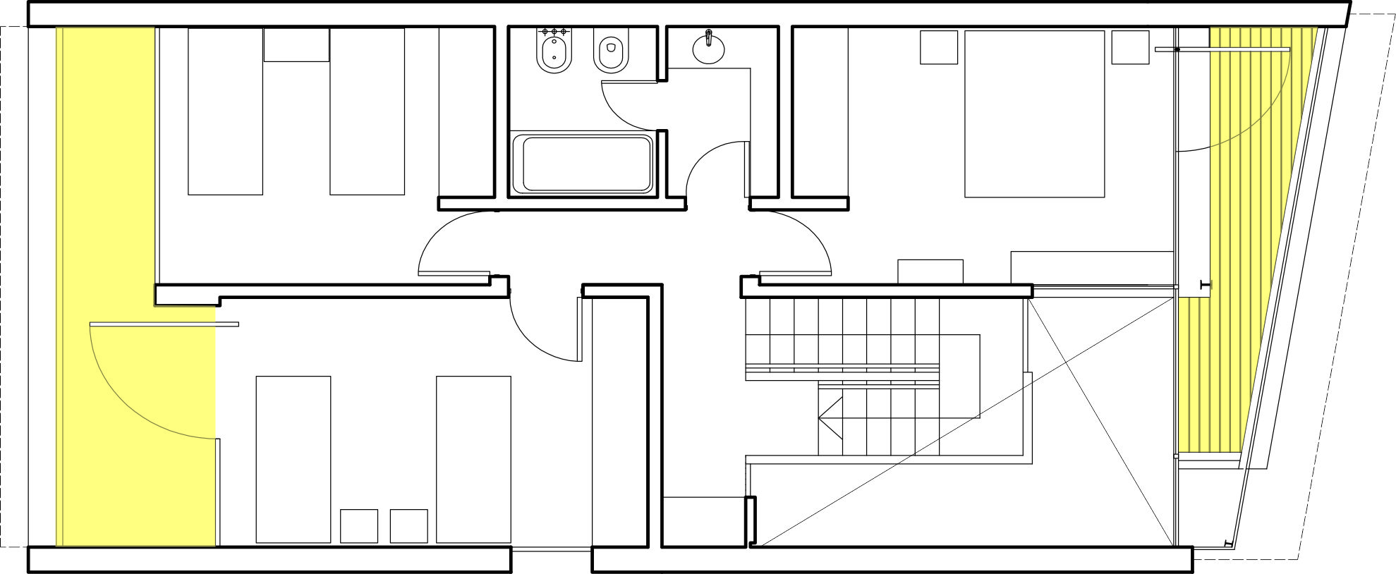
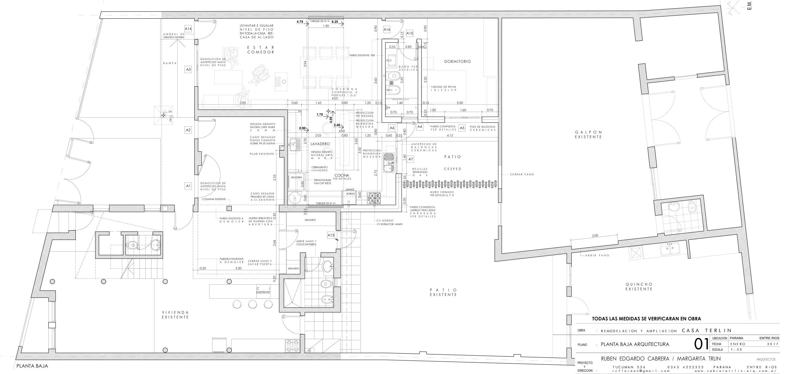
01. PB 1 50
0 (4)
0 (3)
0 (2)
0 (1)
PORTADA 7 12 11 10 9 16 15 ‍14 3 1 (5) 1 (4) 04. detalle 1 10 03. corte 1 25 01. PB 1 50 0 (4) 0 (3) 0 (2) 0 (1)

 

FICHA TÉCNICA:

  • AÑO DE PROYECTO: 2003
  • AÑO DE CONSTRUCCION: 2005
  • SUPERFICIE CUBIERTA: 290.00M2
  • UBICACIÓN: PARANA  ER
  • PROYECTO Y DIRECCION  DE OBRA