Ir al contenido
El Estudio
Obras y Proyectos
Edificios Institucionales
Espacios Públicos
Viviendas
Objetos y Mobiliario
Dibujos
Premios y Publicaciones
Académico
Novedades
Contacto
El Estudio
Obras y Proyectos
Edificios Institucionales
Espacios Públicos
Viviendas
Objetos y Mobiliario
Dibujos
Premios y Publicaciones
Académico
Novedades
Contacto
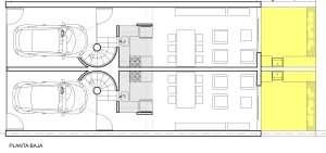
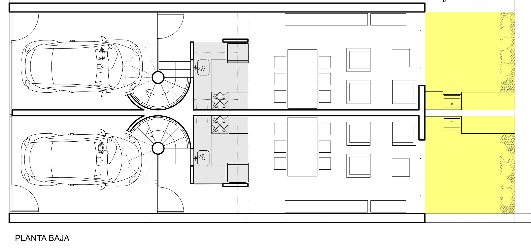
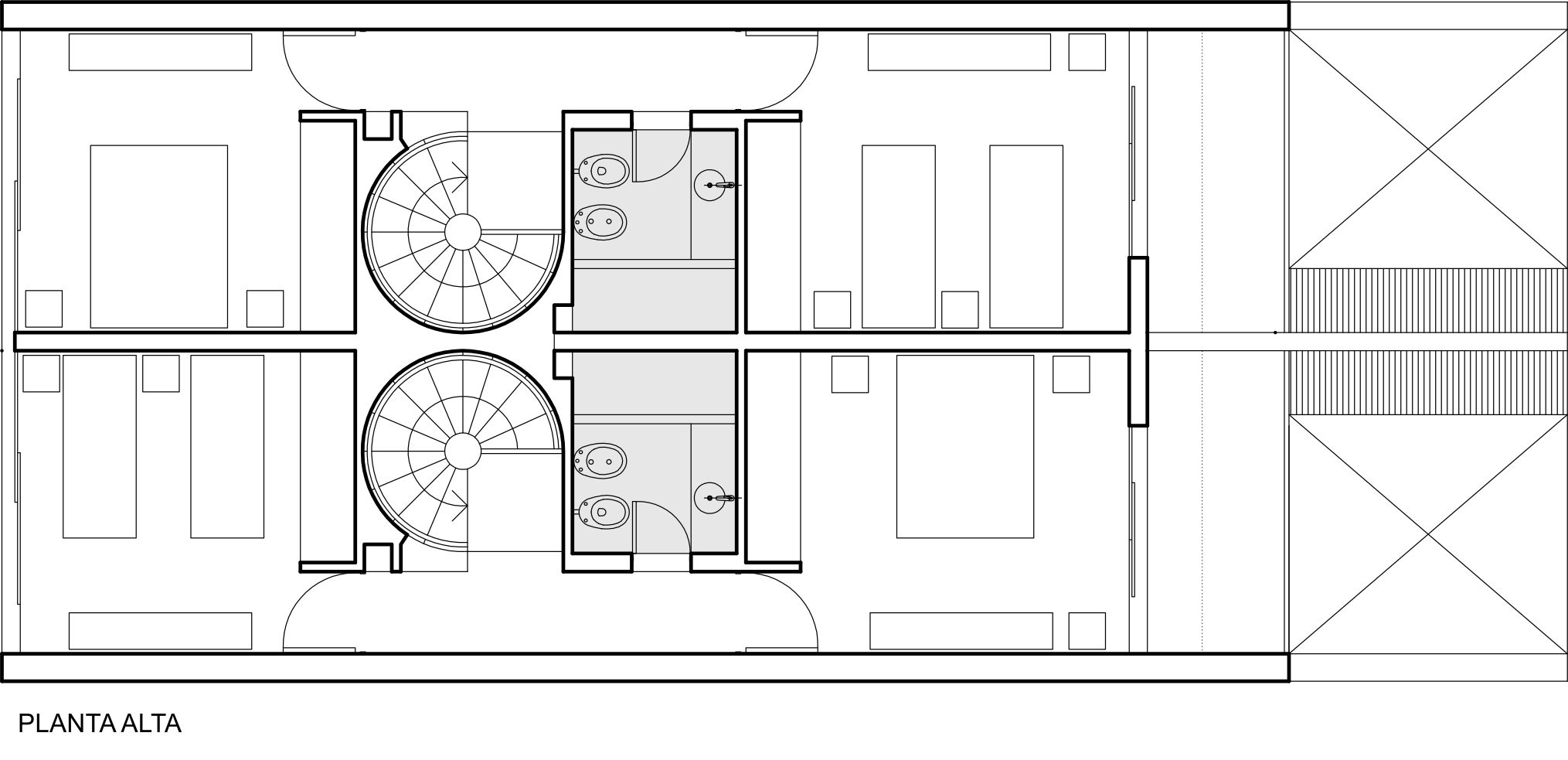
DÚPLEX T
Prev
ANTERIOR
CONCURSO EDIFICIO DE VIVIENDAS CAJA DE PREVISION DE MEDICOS Y BIOQUIMICOS – PARANÁ, ENTRE RÍOS.
SIGUIENTE
ESTUDIO CT – PARANÁ, ENTRE RÍOS.
Next